我们携手共创改变。
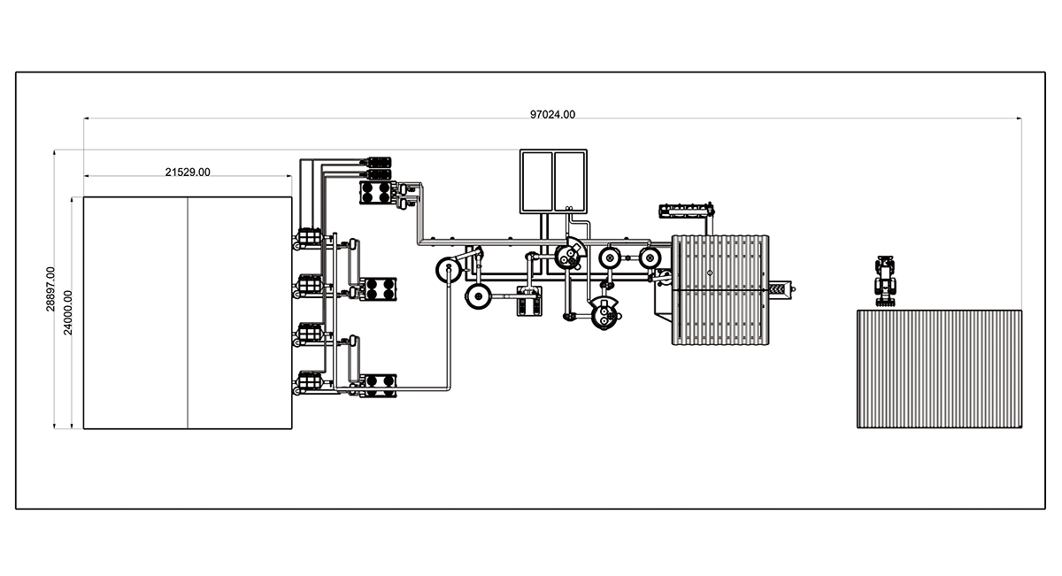
UFBG系列生物质气化发电系统

核心定位
WUFBG上气式固定床气化炉是Powermax自主研发的专业级生物质气化核心装备,获SGS、CE权威认证,技术成熟、参数可控。系统可灵活配置燃气内燃机、蒸汽锅炉、导热油锅炉ORC低温发电方案,实现生物质能源梯级高效利用,为生物质气化发电、供热、化工原料供给等全场景提供核心气化解决方案。
核心技术
四大反应环节
WUFBG系列气化炉采用上吸式固定床结构,生物质原料在炉内依次完成四个反应阶段,实现向可燃气体的高效转化:
干燥:高温去除原料水分,为后续反应奠定基础
热解:无氧环境下分解产生可燃气体、焦油及固体残渣
氧化:热解产物与气化剂反应,释放大量热量
还原:高温气体与固体碳反应,生成以可燃成分为主的气化气
气化剂组合
采用蒸汽与热空气组合气化剂,保障反应高效稳定,提升可燃气体产出效率与热值稳定性。
副产品价值
气化过程同步产出生物炭,为客户创造额外经济收益,实现原料全利用。



| UFBG系列生物质气化发电系统技术规范 | |
| 型号 | UFBG2400-5200 |
| 气化炉类型 | 上气流固定床气化炉 |
| 气体净化系统类型 | 干式 |
| 气化剂 | 蒸汽和热空气 |
| 生物质大小要求 | 直径:20mm-80mm,长度:20mm-80mm |
| 生物质水分要求 | ≥30%(WB) 最大55%(WB) |
| 额定气体流量(Nm3/hr) | 每模块 1,000-10,000 |
| 平均气体热值(Kcal/Nm3) | 1200-1800 |
| 净化后的额定热输出(Kcal/hr) | 1.200,000-12,000,000 |
| 用于发电 | 每模块 500-5000kW |
| 冷煤气模式(净化后) | ≥70-75% |
| 气化炉出口煤气温度(°C) | ≤100℃ |
| ESP出口气体温度(°C) | ≤45℃ |
| 除尘 | 湿灰/干灰去除系统 |